全景样板房
鸿基装饰集团董事长胡克伟
装修报名
鸿基装饰集团总部
地址:南昌市红谷滩新区世贸路699号鸿基装饰集团A座23层(世贸路与凤凰中大道交界口)电话:0791- 88503995
绿地博览城(鸿基装饰集团&超牌家装)
作者:本站原创 时间:2021-04-02 10:55:14
项目名称:绿地博览城
项目户型:三室两厅一卫一厨
项目面积:89㎡
项目风格:现代风格
项目设计:鸿基装饰集团&超牌家装
项目造价:超牌家装1688元/㎡×89㎡=150232元
预算外增项造价:18966元
工程总造价:169198元
设计理念:拿到户型的时候,算是对于刚需来说规划的还比较合理的三居室,这样的户型也很常见,由于业主的需求不是太刚需,暂时这房子是作为90后小两口的过渡房,希望以享受当下为主,考虑宝宝的时候再置换改善性房,这套房子就留给父母亲居住。
了解到业主的需求后,我们在户型上就尝试做了大胆的改造,在风格上我们以自然质朴的元素营造轻生活的调性。

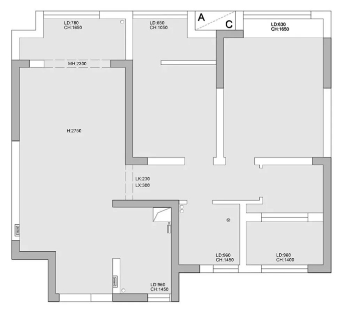
图1.户型分析:这是我们测量时候的原始结构,上面有介绍到是个比较常规的三居室的空间,但是在一些小细节上也存在很多的不足。1、入户鞋柜的位置比较尴尬 左手边深度不够,右手边占厨房的空间;2、原结构主卧的衣柜按照原位置会压缩主卧整体空间显得会比较小;3、卫生间空间很小,原结构达不到业主想要的干湿分离。

图2.户型改造:1、我们将利用鞋柜的柜体和削薄墙体,利用第一扇内嵌门,能保证过道的宽度,鞋柜的正常深度和厨房的空间利用最大化;2、我们利用第二扇内嵌门,将卫生间改造成干湿分离,原本以为淋浴空间比较小,现场的实际感受也比较舒适;3、我们利用第三扇内嵌门,将北面的小房间打造成榻榻米房,业主说冬天的时候坐在榻榻米上泡脚就近卫生间应该是一件很享受的事情;4、我们利用第四扇内嵌门,打造了小两口的书房和卧室的套间;5、我们利用第五扇内嵌门,打造了卧室和书房可开可合的空间。

客厅,纳入阳台,增加使用面积与采光,木地板搭配极简点光源顶面,灰色主沙发搭配大面积的原木家具与棉麻编织地毯,让生活回归自然。电视背景延续大白墙,搭配木质架空电视柜,吊钟是在市场精心挑选的一株,装饰画选好给业主看的时候,业主说虽然看不懂画的是什么,但就是好喜欢,简简单单的装饰都是自己喜欢的就好。

这是我们精确到毫米的入户鞋柜,鞋柜后方就是隐藏厨房的玻璃移门啦,鞋柜中部与底部留空,方便置物与放置拖鞋,隐形灯光增加层次。厨房,水泥灰地砖搭配白色方砖墙面,白色的地柜搭配木色隔板,清玻隔断以入墙移门隔离油烟,但不影响空间的通透性。

主卧,极简的墙顶面设计搭配原木地板,装饰画修饰床背景,灰褐色大床搭配卡其窗帘,低饱和的色彩制造舒眠环境。



























