鸿基装饰集团总部
地址:南昌市红谷滩新区世贸路699号鸿基装饰集团A座23层(世贸路与凤凰中大道交界口)电话:0791- 88503995
现代风格精品案例
作者:本站原创 时间:2018-01-07 15:26:59



项目名称:万科四季花城
项目面积:125㎡
项目户型:三室两厅两卫一厨
项目设计:鸿基伟业装饰公司
(设计师:胡龙超)
设计风格:现代简约
项目造价:基础装修96830元

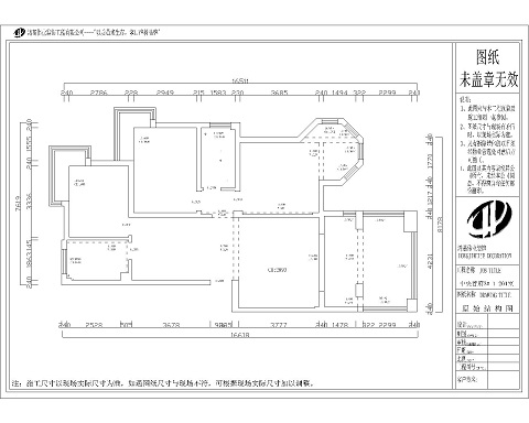
原始结构:缺点
1.餐厅位置小,厨房位置小,餐厅旁边阳台利用率低。
2.南面小孩房和主卧房门口的位置有些浪费。
3.南面阳台有2个门,主卧的私密感差。
4.主卧室衣柜的位置不够。
▼平面方案
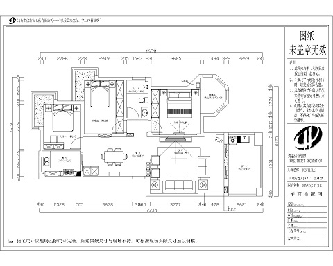
平面优化后:
1.打掉北面阳台纳入到餐厅,把餐桌靠墙利用卡座的位置来节约空间,在餐厅处设计了西厨水吧区,来延伸厨房的功能,这样优化后,各个空间的位置都可以互相利用。
2.把原先过道位置往左偏移,让一进门就能看到玄关的位置,同时也增大了公卫干区的空间。
3.把过道的位置缩短,借用小孩房的空间,让主卧室增加衣帽间的功能。
4.缩小南面洗晒阳台,增加小孩房的面积,取消卧室和客厅的入口,从小孩房进洗衣房,这样卧室的私密感会好很多,同时也让小孩房和洗晒的功能更加合理。
5.公卫采取干湿分离的设计,使用起来更合理,在干区设计了充分的收纳空间。
6.取消了主卫的淋浴功能 保留洗脸盆及马桶的功能,因为3口之家一个淋浴区足够。
▼客厅
客厅电视背景墙是及收纳的功能的,左边是封闭式的柜子,右边是开放式的书柜,电视做成了嵌入式的,让空间更干净。
墙面刷了卡其色的有色乳胶漆,沙发背景是原墙贴了拉丝金色的不锈钢,顶上也是0.8宽的拉丝金不锈钢。
考虑到装修的成本,顶的设计没有满吊,中间是原顶,所以用了明装装的射灯,电视背景的木饰面是用的KD板,现场制作。
▼餐厅
厨房和西厨的区域,空间不是很大,但是功能很强,西厨有设计烤箱、洗碗机、冰箱、操作台,在吃饭之前洗个手,切个水果很方便。餐厅的卡座是定制的,因为餐厅的宽度不够 所以设计了卡座来节约餐厅的空间,减少过道区域。
▼儿童房
墙面也是用的有色乳胶漆来做的拼色,这个在施工的时候要注意很多的细节,比如放样啊,有色乳胶漆调色的时候要把握好,看起来简单,施工起来还是比较费工的。
▼主卧
主卧室的顶也是原顶,四周吊了一个边,镶嵌了拉丝不锈钢,床头背景墙是石膏板做的,刷的实有色乳胶漆,边是用了不锈钢来收口。



























