集团新闻
鸿基装饰集团董事长胡克伟
装修报名
鸿基装饰集团总部
地址:南昌市红谷滩新区世贸路699号鸿基装饰集团A座23层(世贸路与凤凰中大道交界口)电话:0791- 88503995
温馨舒适的新中式住宅!
作者:本站原创 时间:2020-12-17 18:36:06
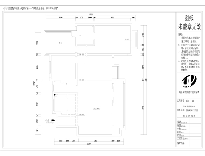
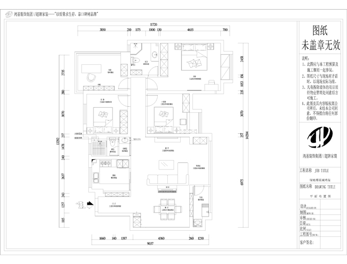
项目名称:绿地国际博览城.鸿玺
项目户型:四室两厅二卫一厨
项目面积:140㎡
项目设计:鸿基装饰集团&超牌家装公司
设计风格:新中式风格
项目基装造价:128660元
设计理念:整体风格为新中式。在材料的选择上,设计师始终秉持着自然环保的同时,对材料理的质感、肌理、形制、色系都精心考究,其中酌量添加金属等现代装饰材料,使设计更加拥有艺术气息与格调。

图1.2.亮点:宽敞的空间被分解成若多个功能区域,在原有的格局上重新划分空间,满足实用的同时兼顾美观。

图3亮点:入户门厅左侧原有墙体比较厚,设计师设计上拆除原有入户过道和厨房之间的墙体,设计满墙的入户鞋帽柜,利用墙体的空间,更好的满足房主人的储物空间需求。

图4亮点:客餐厅空间区域划分上采用简约通透的屏风设计,加上顶面吊顶的分区域设计,功能区一目了然。电视背景墙造型上采用当下流行的岩板+护墙板的设计,高档又不繁琐。

图5亮点:原有入户大门正对阳台玻璃,设计在设计上考虑家居风水,把原有阳台窗户及部分墙体拆除,设计入墙酒柜结合磨砂玻璃+木方格的设计,既避免了前后通的问题,又满足了餐厅的储物和采光问题,一举三得。

图6亮点:餐厅背景墙在设计上以客厅背景墙中心点以及客餐厅主灯为中轴线的对称设计,用材上采用木线条和墙布的设计,简约而不简单。

图7亮点:设计师在主卧设计上还是追求简约而不简单,在满足中央空调风口的要求下,简约的一字型吊顶足以;背景墙上以简约的木线条和墙布的结合,是卧室空间更加温馨舒适。
岁时匆匆,流年光影,生活里处处深藏着对人生领悟的大智慧,那是一种自然生活的哲学。



























